
Neubau Wohn- und Geschäftshauses
Allee der Kosmonauten 32b, 12681 Berlin
LP 5-7

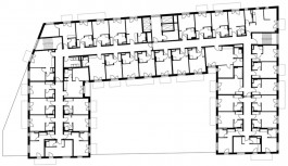
Das Baugrundstück befindet sich südlich der Kreuzung Allee der Kosmonauten / Marzahner Chaussee in unmittelbarer Nähe zum S-Bahnhof Springpfuhl. Das Gebäude B ist Teil des Stadtquartiers „Allee der Kosmonauten/Marzahner Chaussee/Marler Weg" und sieht insgesamt ca. 51.000 m² Wohn-und Nutzfläche vor. Neben den Neubauten werden neue Privatstraßen zur Erschließung mit Stellflächen für PKW und Grünflächen angelegt. Insgesamt werden im Haus B in den neun Obergeschossen 288 Wohneinheiten mit einer Wohn-/Nutzfläche von ca. 9.842 m² inklusive einer Gewerbeeinheit im Erdgeschoss mit einer Nutzfläche von ca. 1.973 m² entstehen.
Es werden 254 Ein-Zimmer-Wohnungen und 34 Zwei-Zimmer-Wohnungen mit Wohnungsgrößen zwischen ca. 22 m² bis 51 m² errichtet, wovon 95 der Wohnungen barrierefrei nutzbar sein werden. Insgesamt verfügen 230 Wohnungen über einen Balkon, eine Terrasse oder eine Loggia. Die lichten Raumhöhen in den neuen Wohnungen betragen ca. 2,75 m. Die Gewerbeeinheit im Erdgeschoß wird vollständig von einem Discounter angemietet. Die Verkaufsraumfläche beträgt ca. 1.262 m², die gesamte Fläche beläuft sich, inklusive der im Gebäude gelegenen Anlieferzone, ohne Technikzwischenebene, auf ca. 1.973 m².

Grundriss Regelgeschoss




Schnitt


Balkondetails
Perspektive

Treppenhausbeispiel

Neubau Wohn- und Geschäftshauses
Allee der Kosmonauten 32b, 12681 Berlin
LP 5-7
Das Baugrundstück befindet sich südlich der Kreuzung Allee der Kosmonauten / Marzahner Chaussee in unmittelbarer Nähe zum S-Bahnhof Springpfuhl. Das Gebäude B ist Teil des Stadtquartiers „Allee der Kosmonauten/Marzahner Chaussee/Marler Weg und sieht insgesamt ca. 51.000 m² Wohn-und Nutzfläche vor. Neben den Neubauten werden neue Privatstraßen zur Erschließung mit Stellflächen für PKW und Grünflächen angelegt. Insgesamt werden im Haus B in den neun Obergeschossen 288 Wohneinheiten mit einer Wohn-/Nutzfläche von ca. 9.842 m² inklusive einer Gewerbeeinheit im Erdgeschoss mit einer Nutzfläche von ca. 1.973 m² entstehen.
Es werden 254 Ein-Zimmer-Wohnungen und 34 Zwei-Zimmer-Wohnungen mit Wohnungsgrößen zwischen ca. 22 m² bis 51 m² errichtet, wovon 95 der Wohnungen barrierefrei nutzbar sein wird. Insgesamt verfügen 230 Wohnungen über einen Balkon, eine Terrasse oder eine Loggia. Die lichten Raumhöhen in den neuen Wohnungen betragen ca. 2,75 m. Die Gewerbeeinheit im Erdgeschoß wird vollständig von einem Discounter angemietet. Die Verkaufsraumfläche beträgt ca. 1.262 m², die gesamte Fläche beläuft sich, inklusive der im Gebäude gelegenen Anlieferzone, ohne Technikzwischenebene, auf ca. 1.973 m².

Grundriss Regelgeschoss

Baugrube

Schnitt

Balkondetails

Treppenhausbeispiel