
Sanierung und Umbau eines Bestandsgebäudes
Ansbacher Straße, Berlin
LP 1-4
Aufstockung eines Mehrfamilienhauses mit 5 neuen großzügigen Wohnungen und Sanierung von 25 Bestandswohnungen sowie einer Gewerbefläche im Erdgeschoss.

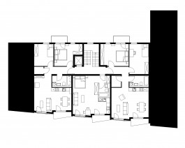
Grundriss Regelgeschoss

Perspektive

Schnitt

Straßenansicht

Hofansicht

Sanierung und Umbau eines Bestandsgebäudes
Ansbacher Straße, Berlin
LP 1-4
Aufstockung eines Mehrfamilienhauses mit 5 neuen großzügigen Wohnungen und Sanierung von 25 Bestandswohnungen sowie einer Gewerbefläche im Erdgeschoss.

Grundriss Regelgeschoss


Schnitt

Straßenansicht

Hofansicht