
Neubau Mehrfamilienhaus
Bevernstraße 2, 10997 Berlin
LP 5-8

Der geplante Neubau befindet sich im berliner Bezirk Kreuzberg und ist fußläufig in 120 Metern vom U-Bahnhof Schlesisches Tor erreichbar. Insgesamt sind 13 neue Wohnungen im Neubau und im Dachgeschoss des Altbaus geplant. Auf den Dächern sind großflächige Dachterrassen vorgesehen. Für das 2. Obergeschoss sind zwei barrierefreie Wohnungen und im Erdgeschoss eine Gewerbeeinheit geplant.
Eine Garage mit 7 Stellplätzen ist im Erdgeschoss vorgesehen. Im Keller sind, neben den Verschlägen der Wohnungen und einem Lagerraum für das Gewerbe, die allgemeinen Räume für Hausanschluss, Heizung und Kinderwagen entworfen. Die Straßen- und Hoffassade, sowie der Giebel erhalten einen Putz mit altweißer Oberflächenfarbe.


Ansicht Süd-Ost
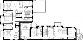
Grundriss Regelgeschoss


Straßenperspektive
Fassade

Neubau Mehrfamilienhaus
Bevernstraße 2, 10997 Berlin
LP 5-8
Der geplante Neubau befindet sich im berliner Bezirk Kreuzberg und ist fußläufig in 120 Metern vom U-Bahnhof Schlesisches Tor erreichbar. Insgesamt sind 13 neue Wohnungen im Neubau und im Dachgeschoss des Altbaus geplant. Auf den Dächern sind großflächige Dachterrassen vorgesehen. Für das 2. Obergeschoss sind zwei barrierefreie Wohnungen und im Erdgeschoss eine Gewerbeeinheit geplant.
Eine Garage mit 7 Stellplätzen ist im Erdgeschoss vorgesehen. Im Keller sind, neben den Verschlägen der Wohnungen und einem Lagerraum für das Gewerbe, die allgemeinen Räume für Hausanschluss, Heizung und Kinderwagen entworfen. Die Straßen- und Hoffassade, sowie der Giebel erhalten einen Putz mit altweißer Oberflächenfarbe.

Ansicht Süd-Ost

Grundriss Regelgeschoss

Straßenperspektive

Fassade