
Umbau Wohngebäude
Birkenallee 2-4, 15745 Wildau
LP 1-4

Das Bauprojekt ist in der Birkenallee in der brandenburgischen Stadt Wildau vorzufinden und liegt westlich in 400 Meter Entfernung zum Fluss Dahme. Auf dem Gründstück befinden sich drei Gebäude, die teilweise umgebaut und zu Wohneinheiten erweitert werden sollen. Geplant sind Wohnungen mit Gemeinschaftsküchen bzw. -bädern, welche vermietet werden sollen.


Visualisierung Balkone und Terrassen
Visualisierung

Visualisierung Stellplätze



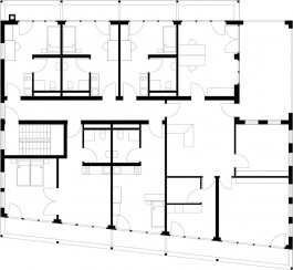
Grundriss Obergeschoss
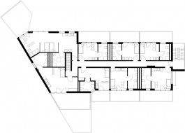
Grundriss Erdgeschoss
Grundriss Obergeschoss

Umbau Wohngebäude
Birkenallee 2-4, 15745 Wildau
LP 1-4
Das Bauprojekt ist in der Birkenallee in der brandenburgischen Stadt Wildau vorzufinden und liegt westlich in 400 Meter Entfernung zum Fluss Dahme. Auf dem Gründstück befinden sich drei Gebäude, die teilweise umgebaut und zu Wohneinheiten erweitert werden sollen. Geplant sind Wohnungen mit Gemeinschaftsküchen bzw. -bädern, welche vermietet werden sollen.

Visualisierung Balkone und Terrassen

Visualisierung

Visualisierung Stellplätze

Grundriss Obergeschoss

Grundriss Erdgeschoss

Grundriss Obergeschoss