
Errichtung eines temporären
Sonderbaus zur Unterbringung
geflüchteter Menschen
Eldenaer Str. 33 10247 Berlin
LP 1-4
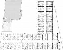
Errichtung eines temporären Sonderbaus zur Unterbringung von circa 400 Menschen in 113 Wohnungen verschiedener Größen sowie Gemeinschaftsflächen, inklusive Flächen für Verwaltung und Betreuung.
Begrünter Gartenhof mit Aufenthalts-und Spielflächen.

Grundriss Erdgeschoss

Grundriss regelgeschoss


Errichtung eines temporären
Sonderbaus zur Unterbringung
geflüchteter Menschen
Eldenaer Str. 33 10247 Berlin
Errichtung eines temporären Sonderbaus zur Unterbringung von circa 400 Menschen in 113 Wohnungen verschiedener Größen sowie Gemeinschaftsflächen, inklusive Flächen für Verwaltung und Betreuung.
Begrünter Gartenhof mit Aufenthalts-und Spielflächen.

Grundriss Erdgeschoss

Grundriss Regelgeschoss
