
Dachaufstockung Einfamilienhaus
Glockenblumenweg 70A, 12357 Berlin
LP 1-3

Im Berliner Bezirk Neukölln befindet sich der Glockenblumenweg, in dem sich das vorliegende Bauobjekt befindet. Geplant ist eine Dachgeschossaufstockung mit einem Satteldach, sowie eine Sanierung der bestehenden Außentreppenanlage des Gebäudes und Umbaumaßnahmen des Erdgeschosses. Entworfen sind Dachgauben, welche dem Dachgeschoss Fläche generieren und viel Licht im Obergeschoss ermöglichen. Im Außenbereich soll die Terrasse mit Bodenaufbau, Fliesen und Treppenpodest erneuert werden.


Visualisierung Küchenbereich
Visualisierung Kinderzimmerbeispiel

Visualisierung Dachaufstockung


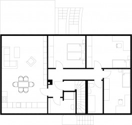
Grundriss Dachgeschoss
Schnitt

Dachaufstockung Einfamilienhaus
Glockenblumenweg 70A, 12357 Berlin
LP 1-3
Im Berliner Bezirk Neukölln befindet sich der Glockenblumenweg, in dem sich das vorliegende Bauobjekt befindet. Geplant ist eine Dachgeschossaufstockung mit einem Satteldach, sowie eine Sanierung der bestehenden Außentreppenanlage des Gebäudes und Umbaumaßnahmen des Erdgeschosses. Entworfen sind Dachgauben, welche dem Dachgeschoss Fläche generieren und viel Licht im Obergeschoss ermöglichen. Im Außenbereich soll die Terrasse mit Bodenaufbau, Fliesen und Treppenpodest erneuert werden.

Visualisierung Küchenbereich

Visualisierung Kinderzimmerbeispiel

Visualisierung Dachaufstockung

Grundriss Dachgeschoss

Schnitt