
Umbau Wohnhaus
Mariendorfer Damm 58, 12109 Berlin
LP 1-8

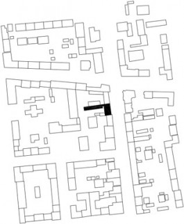
Das umzubauende Gebäude befindet sich im südlichen berliner Bezirk Mariendorf. Die Erschließung des in geschlossener Bauweise eingebundenen Vorderhauses erfolgt vom Mariendorfer Damm. Die vorhandene Bebauung besteht aus einem zur Straße angrenzenden Vorderhaus, sowie einem großen und einem kleinen Seitenflügel im Hof. Geplant sind die bestehenden größeren Wohneinheiten zu fast komplett in 1-Zimmer-Wohnungen mit Badezimmer sowie Küche umzubauen.
Das Erdgeschoss des Vorderhauses ist gerwerblich genutzt und die Obergeschosse, sowie der Seitenflügel dienen zu Wohnzwecken. In den Kellergeschossen sind Hausanschluss-, Heizungsraum und Waschküche, ebenso die Kellereinheiten für die Bewohner des Hauses vorhanden. Im Hofbereich sind der Müllplatz und Fahrradstellflächen vorhanden. Ferner ist im Bereich des linken Seitenflügels eine Stellfläche zur Anlieferung für die Gewerbeeinheiten vorhanden, welche von der Straße über die Durchfahrt erreicht wird.


Ansicht
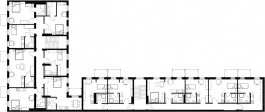
Grundriss Regelgeschoss


Visualisierung Beispielwohnung
Visualisierung Flurbereich


Visualisierung Badezimmer
Visualisierung Beispielwohnung

Umbau Wohnhaus
Mariendorfer Damm 58, 12109 Berlin
LP 1-8
Das umzubauende Gebäude befindet sich im südlichen berliner Bezirk Mariendorf. Die Erschließung des in geschlossener Bauweise eingebundenen Vorderhauses erfolgt vom Mariendorfer Damm. Die vorhandene Bebauung besteht aus einem zur Straße angrenzenden Vorderhaus, sowie einem großen und einem kleinen Seitenflügel im Hof. Geplant sind die bestehenden größeren Wohneinheiten zu fast komplett in Ein-Zimmer-Wohnungen mit Badezimmer sowie Küche umzubauen.
Das Erdgeschoss des Vorderhauses ist gerwerblich genutzt und die Obergeschosse, sowie der Seitenflügel dienen zu Wohnzwecken.
In den Kellergeschossen sind Hausanschluss-, Heizungsraum und Waschküche, ebenso die Kellereinheiten für die Bewohner des Hauses vorhanden. Im Hofbereich sind der Müllplatz und Fahrradstellflächen vorhanden. Ferner ist im Bereich des linken Seitenflügels eine Stellfläche zur Anlieferung für die Gewerbeeinheiten vorhanden, welche von der Straße über die Durchfahrt erreicht wird.

Ansicht

Grundriss

Visualisierung Beispielwohnung

Visualisierung Flurbereich

Visualisierung Badezimmer

Visualisierung Beispielwohnung