
Aufstockung Wohngebäude
Neidenburger Allee, Berlin
LP 1-4

Das entworferne Bauvorhaben befindet sich im berliner Stadtteil Westend in der Neidenburger Allee. Das Grundstück ist innerhalb kürzester Zeit von dem S-Bahnhof Heerstraße zu erreichen. In der dort vorzufindenen aus den 20er Jahre stammenden Siedlung soll das einst zweistockige Doppelhaus wieder zu seiner ursprünglichen Geschosszahl erweitert werden. Die Häuser in der einst konzipierten Gartenstadt wurden durch den zweiten Weltkrieg stark zerstört, dieses Bauvorhaben soll aber an ihrer damaligen Gebäudekubatur angelehnt entworfen werden.


Arbeitsbereich
Wohnbereich


Dachgeschoss Innenansicht
Dachgeschoss Innenansicht


Schlafbereich
Badezimmer


Badezimmer
Details Waschtisch

Innenraumdetails


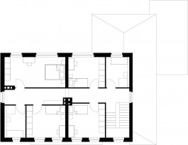
Grundriss Obergeschoss
Ansicht Ost

Aufstockung Wohngebäude
Neidenburger Allee, Berlin
LP 1-4
Das entworferne Bauvorhaben befindet sich im berliner Stadtteil Westend in der Neidenburger Allee. Das Grundstück ist innerhalb kürzester Zeit von dem S-Bahnhof Heerstraße zu erreichen. In der dort vorzufindenen aus den 20er Jahre stammenden Siedlung soll das einst zweistockige Doppelhaus wieder zu seiner ursprünglichen Geschosszahl erweitert werden. Die Häuser in der einst konzipierten Gartenstadt wurden durch den zweiten Weltkrieg stark zerstört, dieses Bauvorhaben soll aber an ihrer damaligen Gebäudekubatur angelehnt entworfen werden.

Arbeitsbereich

Wohnbereich

Dachgeschoss Innenansicht

Dachgeschoss Innenansicht

Schlafbereich

Badezimmer

Badezimmer

Details Waschtisch

Innenraumdetails

Grundriss Obergeschoss

Ansicht Ost