
Neubau Verbindungstreppenhaus I Umnutzung
Reinickendorfer Straße 3, 13347 Berlin
LP 1-8

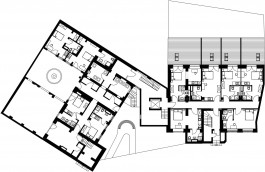
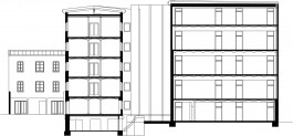
Das Baugrundstück der Reinickendorfer Straße befindet sich im Berliner Bezirk Wedding nahe dem U-Bahnhof Reinickendorfer Straße. Die im Hof bestehenden Häuser II und III verfügen jeweils über bereits vorhandene Treppenhäuser und werden zudem über ein neues zentrales Treppenhaus verbunden. Die vorhandenen historischen Backsteinfassasen bleiben erhalten, werden stellenweise ausgebessert. Die beiden Häuser erhalten eine neue Nutzung und dienen dann als Wohneinheiten. Auf jeweils vier Geschossen entstehen insgesamt 62 Ein-Zimmer-Aparments mit einer Gesamtwohnfläche von ca. 1337m². Die Apartments sind für den vorübergehenden Gebrauch bestimmt und werden Wochen- oder Monatsweise gewerblich vermietet.

Grundriss Erdgeschoss


Visualisierung
Ausführung

Schnitt



Neubau Verbindungstreppenhaus I Umnutzung
Reinickendorfer Straße 3, 13347 Berlin
LP 1-8
Das Baugrundstück der Reinickendorfer Straße befindet sich im berliner Bezirk Wedding nahe dem U-Bahnhof Reinickendorfer Straße. Die im Hof bestehenden Häuser II und III verfügen jeweils über bereits vorhandene Treppenhäuser und werden zudem über ein neus zentrales Treppenhaus verbunden. Die vorhandenen historischen Backsteinfassasen bleiben erhalten, werden stellenweise ausgebessert. Die beiden Häuser erhalten eine neue Nutzung und dienen dann als Wohneinheiten. Auf jeweils vier Geschossen entstehen insgesamt 62 Ein-Zimmer-Aparments mit einer Gesamtwohnfläche von ca. 1337m². Die Apartments sind für den vorübergehenden Gebrauch bestimmt und werden Wochen- oder Monatsweise gewerblich vermietet.

Grundriss Erdgeschoss

Visualisierung

Ausführung

Schnitt


