
Neubau Mehrfamilienhaus
Schleusenstraße, 17291 Prenzlau
LP 1-5

Das entworfene Mehrfamilienhaus in der Schleusenstraße ist in der brandenbrugischen Kreistadt Prenzlau verortet. In 100 Metern ist der beliebte Unteruckersee erreichbar und das Baugrundstück besteht ursprünglich aus drei zusammengefassten einzelnen Grundstücken.
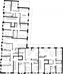
Das Bauvorhaben besteht aus einem Vorderhaus an der Bundesstraße Neustadt und einem Gartenhaus in der Schleusenstraße. Insgesamt sind 16 Wohneinheiten geplant. Die Erschließung der Gebäude erfolgt über drei Treppenhäuser, wobei 10 Wohneinheiten als barrierefrei vorgesehen sind und jedes Treppenhaus über einen Fahrstuhl verfügt. Die Tiefgarage ist über eine Rampe von der Schleusenstraße zu erreichen und umfasst 20 Stellplätze.


Grundriss Obergeschoss
Schnitt

Visualisierung Straße

Visualisierung Hof

Visualisierung Hof

Neubau Mehrfamilienhaus
Schleusenstraße, 17291 Prenzlau
LP 1-5
Das entworfene Mehrfamilienhaus in der Schleusenstraße ist in der brandenbrugischen Kreistadt Prenzlau verortet. In 100 Metern ist der beliebte Unteruckersee erreichbar und das Baugrundstück besteht ursprünglich aus drei zusammengefassten einzelnen Grundstücken.
Das Bauvorhaben besteht aus einem Vorderhaus an der Bundesstraße Neustadt und einem Gartenhaus in der Schleusenstraße. Insgesamt sind 16 Wohneinheiten geplant. Die Erschließung der Gebäude erfolgt über drei Treppenhäuser, wobei 10 Wohneinheiten als barrierefrei vorgesehen sind und jedes Treppenhaus über einen Fahrstuhl verfügt.
Die Tiefgarage ist über eine Rampe von der Schleusenstraßezu erreichen und umfasst 20 Stellplätze.

Grundriss

Schnitt

Straßenperspektive

Visualisierung Hof

Visualisierung Hof